7 Total Photos [Click to View All]
Listed By
Agency Name: CBRE, Inc.
Agency Phone: (701) 660-3500
Shown By
Agency Title: Town & Country Realty
Agency Phone: (701) 293-3333
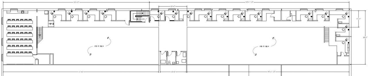
15,000 SF of flex industrial space. Conveniently located 2 miles from I-29 and just off N. University Dr. Offered as a build-to-suit solution, the space accommodates varying space requirements from 1600-15,000 SF.
Listed By
Agency Name: CBRE, Inc.
Agency Phone: (701) 660-3500
Shown By
Agency Title: Town & Country Realty
Agency Phone: (701) 293-3333
Send an email with a link to
2201 N 12th, Fargo, ND 58102.
Contact an agent to learn more about
2201 N 12th, Fargo, ND 58102.
Thank you for your inquiry! As a thank you, we have a Special Mortgage Offer for You.
We would like to provide you a free, no-obligation, home loan pre-approval review.